Kursy walut NBP: USD 3,98 | EUR 4,32 | CHF 4,53 |

Wyszukiwarka
Notes
Zgłoś ofertę
Kalkulator
O nas
Kontakt

Mieszkania
Domy
Działki
Lokale
Obiekty
Szczegóły oferty
Rodzaj oferty
lokal biurowy ( wynajem )
Numer oferty
12634765
Miejscowość
WARSZAWA, WOLA
Ulica
Nakielska
Cena
25 800 PLN
Cena za mkw
54,55 PLN mkw
Powierzchnia
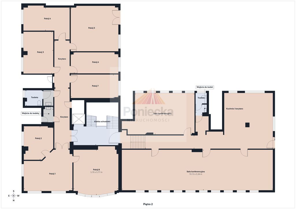
473.00 m2
Liczba pokoi
12
Piętro
2
Liczba pięter
5
Rok budowy
1983
Opis
Do wynajęcia piętro w budynku biurowym o powierzchni 473 m2, zlokalizowany na 2 piętrze budynku przy ul. Nakielskiej w Warszawie. Lokal jest idealny dla firm poszukujących wygodnej przestrzeni do pracy w dobrze skomunikowanej części miasta.

Szczegóły lokalu
- 7 przestronnych pokoi, zapewniające komfort pracy biurowej.
- powierzchnia 243 m2 z salami pod konferencje, doskonała do spotkań biznesowych
- kuchnia
- dwie toalety dla wygody pracowników i gości.
- winda

Ochrona obiektu wliczona w cenę czynszu, co zapewnia bezpieczeństwo najemców.


Warunki wynajmu
Opłaty dodatkowe

4 miejsca parkingowe na terenie biurowca- dodatkowo płatne
Dodatkowa powierzchnia magazynowa - dodatkowo płatna
Centralne ogrzewanie - rozliczane na powierzchnię.
Woda - rozliczenie według zużycia na osobę.
Prąd- według zużycia.
Wystawiana faktura.
Wyposażenie widoczne na zdjęciach - dostępne za dodatkową opłatą, do uzgodnienia.
Cena najmu 25 800 zł netto
Kaucja 26 000 zł
Lokal doskonale nadaje się na biuro, siedzibę firmy lub przestrzeń coworkingową.
Dzięki dogodnej lokalizacji i funkcjonalnemu układowi pomieszczeń, spełni oczekiwania nawet najbardziej wymagających klientów.

Nie przegap tej wyjątkowej oferty - skontaktuj się z nami i umów na prezentację!

Dodatkowe informacje: ochrona, winda, parking

Kontakt do agenta

Dorota Poniecka Nieruchomości
Sarmacka 12 E lok.12
02-972 Warszawa
tel.: 505 059 024 lub 516 156 467
email: dorota@nieruchomoscidp.pl

Wyślij zapytanie

Imię i Nazwisko
Telefon
E-mail
Treść zapytania

Wyrażam zgodę na przetwarzanie moich danych osobowych przez firmę Dorota Poniecka Nieruchomości dla celów związanych z działalnością pośrednictwa w obrocie nieruchomościami, jednocześnie potwierdzam, iż zostałem poinformowany o tym, iż będę posiadać dostęp do treści swoich danych do ich edycji lub usunięcia.

Wyślij ofertę

E-mail
© 2026 Dorota Poniecka Nieruchomości. Wszystkie prawa zastrzeżone.