Kursy walut NBP: USD 3,98 | EUR 4,32 | CHF 4,53 |

Wyszukiwarka
Notes
Zgłoś ofertę
Kalkulator
O nas
Kontakt

Mieszkania
Domy
Działki
Lokale
Obiekty
Szczegóły oferty
Rodzaj oferty
dom wolnostojacy ( sprzedaż )
Numer oferty
12619648
Miejscowość
SADE BUDY
Ulica
Orzeszkowej
Cena
630 000 PLN kalkulator
Cena za mkw
5 431,03 PLN mkw
Powierzchnia
116.00 m2
Pow. działki
363.00 m2
Liczba pokoi
2
Rok budowy
1999
Droga dojazdowa
asfaltowa
Opis
Na sprzedaż dom parterowy o powierzchni 105 m2, położony w miejscowości Sade Budy, gm. Jaktorów.

BUDYNEK
Dom stoi na ogrodzonej działce o powierzchni 363 m2 (ok. 20 m x 17,5 m). Wybudowany został w 1999 roku, jest w dobrym stanie technicznym - gotowy do zamieszkania bez remontu. Dom można rozbudować o kolejną kondygnację, co sprawdzi się w przypadku większej liczby domowników.

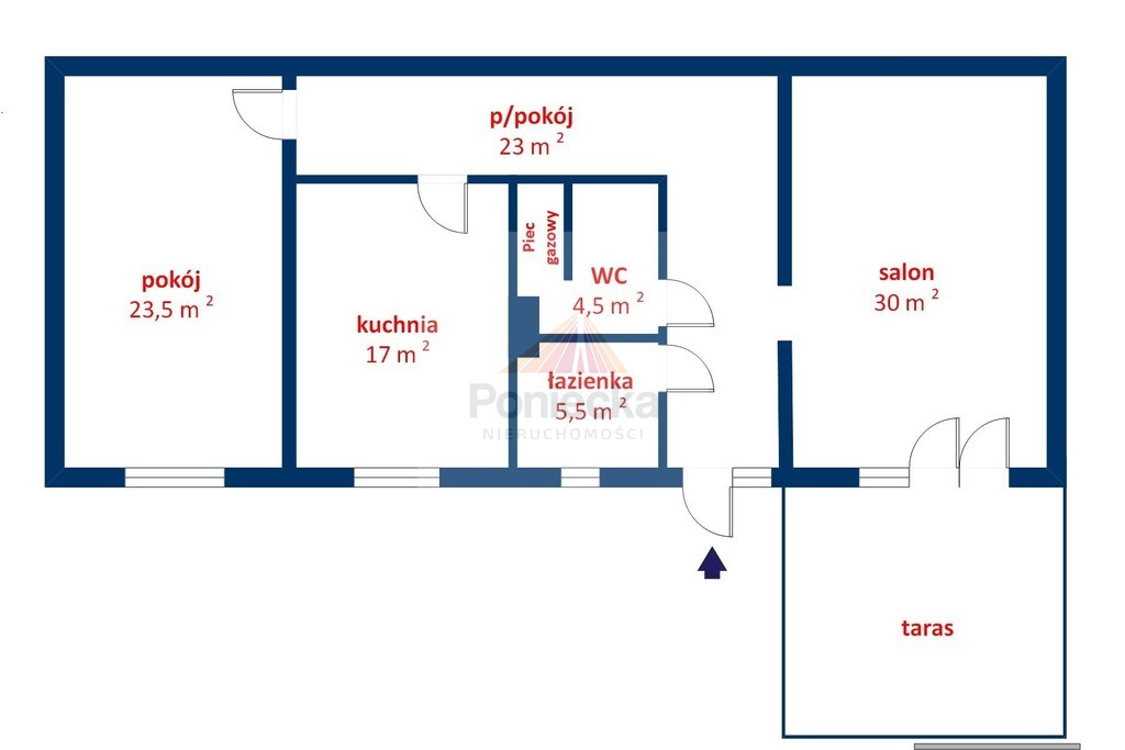
POMIESZCZENIA
salon - 30 m2 z wyjściem na taras 20m2
kuchnia - 17 m2, wyposażona (meble w zabudowie, lodówka, zmywarka, piekarnik),
pokój - 23,5 m2,
p/pokój - 23 m2,
łazienka - 5,5 m2 (wanna, umywalka, WC, okno),
toaleta - 4,4 m2.

Podłogi wykończone panelami i gresem. Okna PCV. Nieruchomość sprzedawana jest z wyposażeniem widocznym na zdjęciach.

MIEDIA
Budynek podłączony jest do sieci wodociągowej, elektroenergetycznej i gazowej.
Odprowadzanie nieczystości do szczelnego szamba. Studzienka kanalizacyjna znajduje się w odległości 35m.
Ogrzewanie piecem gazowym.

LOKALIZACJA
Dom znajduje się wśród domów jednorodzinnych i lasu.

1km do stacji PKP Międzyborów ( dogodne połączenie z Warszawą)
500m do szkoły w Międzyborowie
w pobliżu sklepy i punkty usługowe

Lokalizacja bardzo dokładnie zaznaczona na mapie.

Zapraszam do kontaktu.

Kontakt do agenta

Dorota Poniecka Nieruchomości
Sarmacka 12 E lok.12
02-972 Warszawa
tel.: 505 059 024 lub 516 156 467
email: dorota@nieruchomoscidp.pl

Wyślij zapytanie

Imię i Nazwisko
Telefon
E-mail
Treść zapytania

Wyrażam zgodę na przetwarzanie moich danych osobowych przez firmę Dorota Poniecka Nieruchomości dla celów związanych z działalnością pośrednictwa w obrocie nieruchomościami, jednocześnie potwierdzam, iż zostałem poinformowany o tym, iż będę posiadać dostęp do treści swoich danych do ich edycji lub usunięcia.

Wyślij ofertę

E-mail
© 2026 Dorota Poniecka Nieruchomości. Wszystkie prawa zastrzeżone.