Kursy walut NBP: USD 3,98 | EUR 4,32 | CHF 4,53 |

Wyszukiwarka
Notes
Zgłoś ofertę
Kalkulator
O nas
Kontakt

Mieszkania
Domy
Działki
Lokale
Obiekty
Szczegóły oferty
Rodzaj oferty
działka budowlana ( sprzedaż )
Numer oferty
12592352
Miejscowość
WARSZAWA, BIAŁOŁĘKA
Ulica
Kroczewska
Cena
1 475 000 PLN kalkulator
Cena za mkw
997,97 PLN mkw
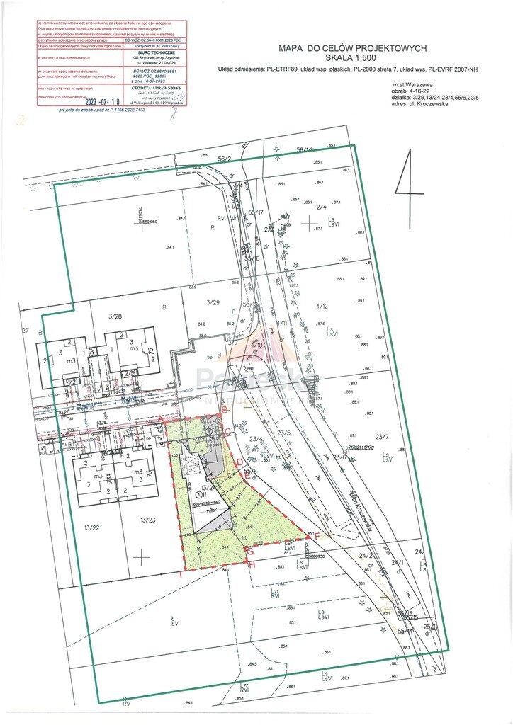
Powierzchnia
1478.00 m2
Droga dojazdowa
asfaltowa
Opis
Działka w administracyjnej Warszawie z bezpośrednim widokiem na ścianę lasu - Puszcza Słupecka
Bezpośrednio przy lesie i przy wjeździe do osiedla Bluszczowe Wille ul. Kroczewska 73
Kształt nieregularny, teren płaski, wjazd na działkę od północy z drogi wewnętrznej utwardzonej kostką
Częściowo zadrzewiona sosnami
Bezpośrednio przy działce wodociąg/gazociąg/prąd - wydane warunki techniczne do podłączenia i zawarte umowy na podłączenie

Wykonane badania geologiczne - warunki geotechniczne pozwalają na bezpośrednie posadowienie fundamentów (nie ma potrzeb wykonywania płyty lub palowania)

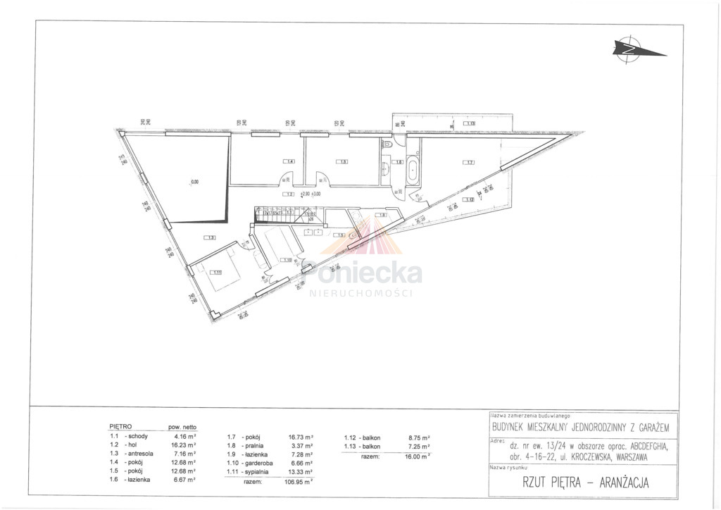
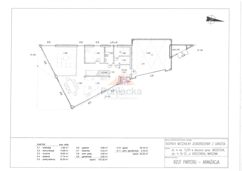
W cenie projekt i pozwolenie na budowę domu jednorodzinnego wolnostojącego Dane projektowanego domu
Dom dwukondygnacyjny z garażem dwustanowiskowym i poddaszem nieużytkowym
Powierzchnia netto 256,45 m2 w tym powierzchnia użytkowa mieszkalna 214,20 m2 + garaż dwustanowiskowy 6,7m szerokości z pomieszczeniem ogrodniczym - łącznie 42,25 m2
Parter salon z antresolą o wysokości 5,6m, kuchnia połączona z jadalnią i salonem, gabinet, łazienka - łącznie ok. 107m2
Piętro 4 sypialnie, 2 łazienki, pralnia, garderoby - łącznie ok. 107m2
Poddasze nieużytkowe z 3 luxferami, wysokość w szczycie 2,35m - 134m2, możliwość wygospodarowania dodatkowego pokoju/pomieszczenia
Możliwość wprowadzenia projektu zamiennego

UWAGA W cenę ofertową działki wliczony podatek VAT


Dodatkowe informacje: media - gaz

Kontakt do agenta

Dorota Poniecka Nieruchomości
Sarmacka 12 E lok.12
02-972 Warszawa
tel.: 505 059 024 lub 516 156 467
email: dorota@nieruchomoscidp.pl

Wyślij zapytanie

Imię i Nazwisko
Telefon
E-mail
Treść zapytania

Wyrażam zgodę na przetwarzanie moich danych osobowych przez firmę Dorota Poniecka Nieruchomości dla celów związanych z działalnością pośrednictwa w obrocie nieruchomościami, jednocześnie potwierdzam, iż zostałem poinformowany o tym, iż będę posiadać dostęp do treści swoich danych do ich edycji lub usunięcia.

Wyślij ofertę

E-mail
© 2026 Dorota Poniecka Nieruchomości. Wszystkie prawa zastrzeżone.