Kursy walut NBP: USD 3,98 | EUR 4,32 | CHF 4,53 |

Wyszukiwarka
Notes
Zgłoś ofertę
Kalkulator
O nas
Kontakt

Mieszkania
Domy
Działki
Lokale
Obiekty
Szczegóły oferty
Rodzaj oferty
działka budowlana ( sprzedaż )
Numer oferty
12315256
Miejscowość
MILANÓWEK
Ulica
Północna
Cena
675 000 PLN kalkulator
Cena za mkw
516,06 PLN mkw
Powierzchnia
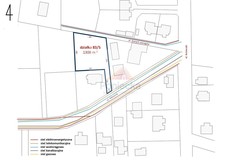
1308.00 m2
Droga dojazdowa
z kostki brukowej
Opis
Na sprzedaż działka o powierzchni 1308m2, położona w Milanówku, jednej z najbardziej zielonych miejscowości pod Warszawą, znanej jako "Miasto-Ogród".

Działka ma nr ewid. 83/5, regularny kształt o wymiarach ok 35x37, położona jest bezpośrednio przy ul. Szarych Szeregów, z wjazdem od ul. Północnej (kostka brukowa).

MPZP
Teren na którym położona jest działka nie jest objęty miejscowym planem zagospodarowania przestrzennego, w związku z czym konieczne jest uzyskanie decyzji o warunkach zabudowy. W bezpośrednim sąsiedztwie znajduje się zabudowa jednorodzinna, nowa zabudowa bliźniacza oraz budynek czterolokalowy.

MEDIA
W ul. Północnej biegnie linia elektroenergetyczna, wodociągowa, gazociągowa, kanalizacyjna oraz telekomunikacyjna, w ul. Szarych Szeregów - elektroenergetyczna i wodociągowa.

LOKALIZACJA I DOJAZD
Nieruchomość położona jest w północnej części Milanówka, 150m od Parku Lasockiego i jest bardzo dobrze skomunikowana
- 200m do przystanku autobusowego na ul. Kościuszki
- 2km do PKP Milanówek (do Warszawy Śródmieście dojedziemy pociągiem Kolei Mazowieckich w 33minuty)
- 6km do wjazdu na autostradę A2

Kameralna zabudowa, otoczenie starodrzewu i liczne tereny spacerowe w połączeniu ze świetną komunikacją ze stolicą czynią te miejsce atrakcyjną alternatywą dla szybkiego tempa życia w Warszawie.

Dodatkowe informacje: kanalizacja, media - prąd, media - gaz

Kontakt do agenta

Dorota Poniecka Nieruchomości
Sarmacka 12 E lok.12
02-972 Warszawa
tel.: 505 059 024 lub 516 156 467
email: dorota@nieruchomoscidp.pl

Wyślij zapytanie

Imię i Nazwisko
Telefon
E-mail
Treść zapytania

Wyrażam zgodę na przetwarzanie moich danych osobowych przez firmę Dorota Poniecka Nieruchomości dla celów związanych z działalnością pośrednictwa w obrocie nieruchomościami, jednocześnie potwierdzam, iż zostałem poinformowany o tym, iż będę posiadać dostęp do treści swoich danych do ich edycji lub usunięcia.

Wyślij ofertę

E-mail
© 2026 Dorota Poniecka Nieruchomości. Wszystkie prawa zastrzeżone.