Kursy walut NBP: USD 3,98 | EUR 4,32 | CHF 4,53 |

Wyszukiwarka
Notes
Zgłoś ofertę
Kalkulator
O nas
Kontakt

Mieszkania
Domy
Działki
Lokale
Obiekty
Szczegóły oferty
Rodzaj oferty
dom wolnostojacy ( sprzedaż )
Numer oferty
12346337
Miejscowość
STRASZYN
Ulica
Spokojna
Cena
799 000 PLN kalkulator
Cena za mkw
7 121,21 PLN mkw
Powierzchnia
112.20 m2
Pow. działki
424.00 m2
Liczba pokoi
5
Liczba pięter
2
Rok budowy
2005
Droga dojazdowa
asfaltowa
Opis
Dom na sprzedaż - Straszyn,
Cena 799 000 zł

Oferujemy na sprzedaż przestronny dom jednorodzinny z ogrodem, położony w cichej i spokojnej części Straszyna. Idealny dla rodziny, która szuka komfortowego miejsca do zamieszkania z szybkim dojazdem do Gdańska i obwodnicy Trójmiasta.

Parametry nieruchomości Powierzchnia użytkowa 112,2 m2 Powierzchnia działki 424 m2 (0,04244 ha)
Rok budowy 2005r
Stan prawny własność, księga wieczysta bez obciążeń


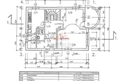
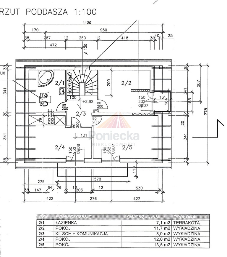
Układ pomieszczeń
Parter salon, pokój, kuchnia, toaleta z umywalką, hol
I piętro 3 pokoje, łazienka z wanną, prysznicem, WC i umywalką
Poddasze możliwość adaptacji na dodatkowe pomieszczenie
Piwnica 4 funkcjonalne pomieszczenia gospodarcze, kotłownia
Garaż w bryle budynku


Atuty nieruchomości 2 balkony i ogród z obejściem wokół domu
ogrzewanie gazowe miejskie
kanalizacja miejska
materiał pustak keramzytowy, dach z blachodachówki
standard wykończeń dobry (panele, gres, okna PCV)
odświeżone ściany (malowanie w ciągu ostatnich 5 lat)

Lokalizacja Dom położony w spokojnej, zielonej części Straszyna, w sąsiedztwie zabudowy jednorodzinnej.
szybki dojazd do obwodnicy Trójmiasta
blisko sklepy, szkoła, przedszkole, przystanek komunikacji miejskiej
dogodny dojazd do Gdańska (ok. 15 min)


Dom gotowy do zamieszkania od zaraz
Idealny dla rodziny szukającej przestrzeni i wygody


Dodatkowe informacje: piwnica, garaż

Kontakt do agenta

Dorota Poniecka Nieruchomości
Sarmacka 12 E lok.12
02-972 Warszawa
tel.: 505 059 024 lub 516 156 467
email: dorota@nieruchomoscidp.pl

Wyślij zapytanie

Imię i Nazwisko
Telefon
E-mail
Treść zapytania

Wyrażam zgodę na przetwarzanie moich danych osobowych przez firmę Dorota Poniecka Nieruchomości dla celów związanych z działalnością pośrednictwa w obrocie nieruchomościami, jednocześnie potwierdzam, iż zostałem poinformowany o tym, iż będę posiadać dostęp do treści swoich danych do ich edycji lub usunięcia.

Wyślij ofertę

E-mail
© 2026 Dorota Poniecka Nieruchomości. Wszystkie prawa zastrzeżone.