Kursy walut NBP: USD 3,98 | EUR 4,32 | CHF 4,53 |

Wyszukiwarka
Notes
Zgłoś ofertę
Kalkulator
O nas
Kontakt

Mieszkania
Domy
Działki
Lokale
Obiekty
Szczegóły oferty
Rodzaj oferty
działka budowlana ( sprzedaż )
Numer oferty
12571114
Miejscowość
BUDY ZOSINE
Ulica
Batalionu "Zośka"
Cena
274 000 PLN kalkulator
Cena za mkw
119,76 PLN mkw
Powierzchnia
2288.00 m2
Droga dojazdowa
polna
Opis
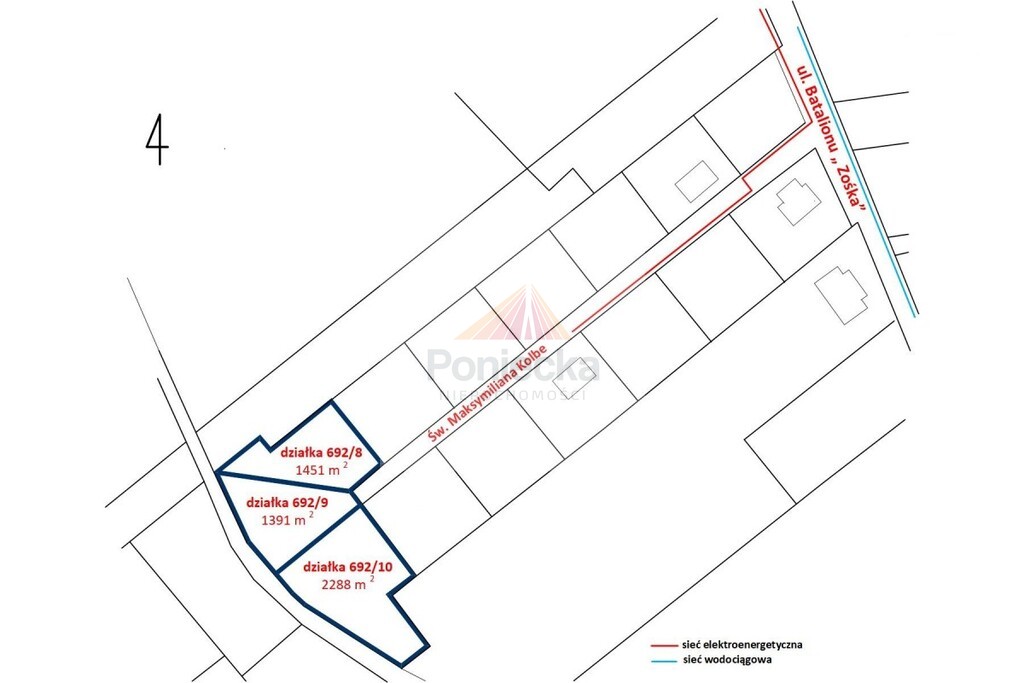
Na sprzedaż działka budowlana 2288m2, położona w Budach Zosinych gm. Jaktorów.

Na końcu spokojnej ulicy, tam gdzie kończy się ruch samochodów, znajduje się działka o nr ewid. 682/10 z warunkami zabudowy - położona w ostatniej linii zabudowy, bezpośrednio przy rzece Głęboka Struga. To miejsce dla osób, które szukają działki pod dom nad rzeczką.

MOŻLIWOŚCI ZABUDOWY
Działka posiada wydane warunki zabudowy, tzw. WZ-tkę, które pozwalają na budowę wygodnego domu jednorodzinnego

* maksymalnie 15% powierzchni zabudowy - około 343m2
* maksymalna wysokość budynku - 9,5 m
* dopuszczone poddasze użytkowe
* minimum 70% powierzchni biologicznie czynnej

Istnieje możliwość zakupu działki sąsiedniej, co pozwala stworzyć większą nieruchomość i na niej większy dom.

LOKALIZACJA I OTOCZENIE
Ulica św. Maksymiliana Kolbe biegnąca przy wydzielonych działkach zakończona jest tzw. zawrotką, co ogranicza ruch tylko do mieszkańców i ich gości. Sąsiedztwo rzeki oraz terenów zielonych daje poczucie spokoju i przestrzeni.

* najbliższy przystanek PKS - ok. 300 m
* sklepy, przychodnie i usługi - Jaktorów, ok. 3 km
* Warszawa - ok. 35 km

POTENCJAŁ INWESTYCYJNY
Gmina Jaktorów dynamicznie się rozwija, a działki w tak unikalnym położeniu - ostatnia linia zabudowy i bezpośredni dostęp do rzeki - należą do najbardziej poszukiwanych. To propozycja zarówno do zamieszkania, jak i jako bezpieczna forma lokaty kapitału w gruncie.


Dodatkowe informacje: media - prąd

Kontakt do agenta

Dorota Poniecka Nieruchomości
Sarmacka 12 E lok.12
02-972 Warszawa
tel.: 505 059 024 lub 516 156 467
email: dorota@nieruchomoscidp.pl

Wyślij zapytanie

Imię i Nazwisko
Telefon
E-mail
Treść zapytania

Wyrażam zgodę na przetwarzanie moich danych osobowych przez firmę Dorota Poniecka Nieruchomości dla celów związanych z działalnością pośrednictwa w obrocie nieruchomościami, jednocześnie potwierdzam, iż zostałem poinformowany o tym, iż będę posiadać dostęp do treści swoich danych do ich edycji lub usunięcia.

Wyślij ofertę

E-mail
© 2026 Dorota Poniecka Nieruchomości. Wszystkie prawa zastrzeżone.