Rodzaj oferty
działka budowlana ( sprzedaż )
Opis
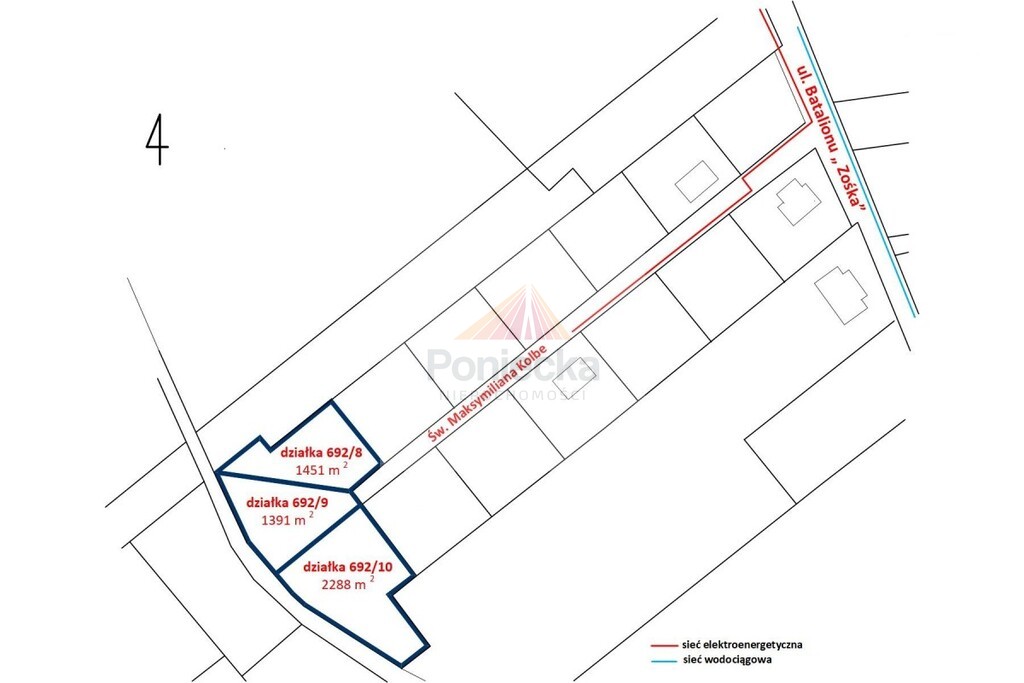
Na sprzedaż działka budowlana 1391m2, położona w Budach Zosinych gm. Jaktorów.
Na końcu spokojnej ulicy, tam gdzie kończy się ruch samochodów, znajduje się działka nr 682/9 z warunkami zabudowy - położona w ostatniej linii zabudowy, bezpośrednio przy rzece Głęboka Struga. To miejsce dla osób, które szukają działki pod dom nad rzeczką.
MOŻLIWOŚCI ZABUDOWY
Działka posiada wydane warunki zabudowy, tzw. WZ-tkę, które pozwalają na budowę wygodnego domu jednorodzinnego
* maksymalnie 15% powierzchni zabudowy - około 208 m2
* maksymalna wysokość budynku - 9,5 m
* dopuszczone poddasze użytkowe
* minimum 70% powierzchni biologicznie czynnej
Istnieje możliwość zakupu działki sąsiedniej, co pozwala stworzyć większą nieruchomość i na niej większy dom.
LOKALIZACJA I OTOCZENIE
Ulica św. Maksymiliana Kolbe biegnąca przy wydzielonych działkach zakończona jest tzw. zawrotką, co ogranicza ruch tylko do mieszkańców i ich gości. Sąsiedztwo rzeki oraz terenów zielonych daje poczucie spokoju i przestrzeni.
* najbliższy przystanek PKS - ok. 300 m
* sklepy, przychodnie i usługi - Jaktorów, ok. 3 km
* Warszawa - ok. 35 km
POTENCJAŁ INWESTYCYJNY
Gmina Jaktorów dynamicznie się rozwija, a działki w tak unikalnym położeniu - ostatnia linia zabudowy i bezpośredni dostęp do rzeki - należą do najbardziej poszukiwanych. To propozycja zarówno do zamieszkania, jak i jako bezpieczna forma lokaty kapitału w gruncie.