Kursy walut NBP: USD 3,98 | EUR 4,32 | CHF 4,53 |

Wyszukiwarka
Notes
Zgłoś ofertę
Kalkulator
O nas
Kontakt

Mieszkania
Domy
Działki
Lokale
Obiekty
Szczegóły oferty
Rodzaj oferty
mieszkanie ( sprzedaż )
Numer oferty
12574259
Miejscowość
WARSZAWA, PRAGA-PÓŁNOC
Ulica
Siedlecka
Cena
939 000 PLN kalkulator
Cena za mkw
16 827,96 PLN mkw
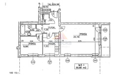
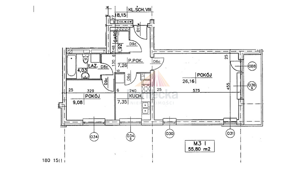
Powierzchnia
55.80 m2
Liczba pokoi
3
Piętro
1
Liczba pięter
3
Rodzaj kuchni
aneks
Stan mieszkania
bardzo dobry
Rok budowy
2008
Droga dojazdowa
asfaltowa
Opis
Na sprzedaż mieszkanie przy ulicy Siedleckiej w Warszawie o powierzchni 55,80 m2 z aneksem kuchennym, miejscem parkingowym i komórką lokatorską.
Wyjątkowa lokalizacja w bezpośredniej bliskości znajdują się tereny zielone i sportowe, przedszkole i szkoły na każdym poziomie, punkty handlowo-usługowe, kawiarnie i komunikacja miejska. Nieruchomość położona jest na pierwszym piętrze, posiada księgę wieczystą i można kupić ją na kredyt.

OPIS MIESZKANIA
- salon z aneksem kuchennym - powierzchnia ponad 26 m2 - meble i sprzęt AGD w cenie mieszkania
- osobna garderoba o powierzchni ok 2 m2
- dwa pokoje - obecnie stanowiące sypialnie
- przedpokój z miejscem na pojemną szafę
- łazienka z WC z wanną i umywalką
- balkon z widokiem na zieleń

Do mieszkania przynależy komórka lokatorska - płatna dodatkowo - 15 000 zł
Miejsce parkingowe w garażu podziemnym - płatne dodatkowo - 45 000 zł

Aktualny czynsz i opłaty eksploatacyjne ok 850 zł miesięcznie.

LOKALIZACJA
Mieszkanie znajduję się zaledwie 3 min pieszo od przystanku tramwajowego i autobusowego. Niedaleko znajdują się tereny zielone skwer Judyty, skwer Radziwiłłów, Park Michałowski. W bliskiej odległości znajdziemy sklepy, szkoły w tym muzyczna, lokale usługowe czy tereny sportowe.
Teatr Mała Warszawa 200m. Teatr Oratorium 450 m. Centrum Praskie Koneser 1,3 km.

To mieszkanie to idealne połączenie komfortu, świetnej lokalizacji i zielonego otoczenia.
Doskonałe dla rodzin, par, singli oraz inwestorów.

Kupujący nie płaci prowizji!
Zapraszam na prezentację osoby zainteresowane oraz Agentów z Klientami.


Dodatkowe informacje: balkon, garaż, komórka

Kontakt do agenta

Dorota Poniecka Nieruchomości
Sarmacka 12 E lok.12
02-972 Warszawa
tel.: 505 059 024 lub 516 156 467
email: dorota@nieruchomoscidp.pl

Wyślij zapytanie

Imię i Nazwisko
Telefon
E-mail
Treść zapytania

Wyrażam zgodę na przetwarzanie moich danych osobowych przez firmę Dorota Poniecka Nieruchomości dla celów związanych z działalnością pośrednictwa w obrocie nieruchomościami, jednocześnie potwierdzam, iż zostałem poinformowany o tym, iż będę posiadać dostęp do treści swoich danych do ich edycji lub usunięcia.

Wyślij ofertę

E-mail
© 2026 Dorota Poniecka Nieruchomości. Wszystkie prawa zastrzeżone.