Kursy walut NBP: USD 3,98 | EUR 4,32 | CHF 4,53 |

Wyszukiwarka
Notes
Zgłoś ofertę
Kalkulator
O nas
Kontakt

Mieszkania
Domy
Działki
Lokale
Obiekty
Szczegóły oferty
Rodzaj oferty
działka budowlana ( sprzedaż )
Numer oferty
12564745
Miejscowość
KAJETANY
Ulica
Czarny Las
Cena
1 800 000 PLN kalkulator
Cena za mkw
442,04 PLN mkw
Powierzchnia
4072.00 m2
Droga dojazdowa
asfaltowa
Opis
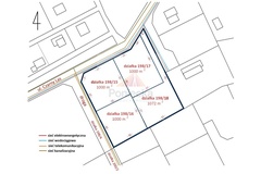
Na sprzedaż teren inwestycyjny 4072 m2 położony bezpośrednio przy ul. Czarny Las w Kajetanach, gm. Nadarzyn.
Działka narożna o wymiarach ok. 63 63 - dojazd z dwóch stron.

MPZP
Teren objęty miejscowym planem zagospodarowania przestrzennego, przeznaczony pod zabudowę jednorodzinną i bliźniaczą
- maks. 40% powierzchni zabudowy
- wysokość budynków do 12 m
- minimalna powierzchnia działki przy zabudowie bliźniaczej 500 m2
- powierzchnia biologicznie czynna - 60%

Grunt został podzielony na 4 działki po ok. 1000 m2. Każda z nich pozwala na budowę bliźniaka. Teren daje prosty i czytelny układ pod 4 budynki bliźniacze. Obecnie istnieje możliwość zakupu pojedynczych działek.

MEDIA
Media w drodze przy działce woda, kanalizacja, prąd. W planach światłowód.
W granicy działki znajduje się rów widoczny na zdjęciach dołączonych do oferty.
Sąsiedztwo nowej zabudowy jednorodzinnej, bliźniaczej oraz działki jeszcze nie zabudowane.

OKOLICA
Kajetany to miejsce, które łączy zalety spokojnej, podmiejskiej lokalizacji z wygodnym dostępem do Warszawy - idealne dla osób ceniących równowagę między naturą a codziennym komfortem życia. Miejscowość leży w pobliżu trasy S8 (3km), co zapewnia wygodny i szybki dojazd do Warszawy. To alternatywa dla osób, które pracując w stolicy, chcą mieszkać poza dużym miastem.



Dodatkowe informacje: kanalizacja, media - prąd

Kontakt do agenta

Dorota Poniecka Nieruchomości
Sarmacka 12 E lok.12
02-972 Warszawa
tel.: 505 059 024 lub 516 156 467
email: dorota@nieruchomoscidp.pl

Wyślij zapytanie

Imię i Nazwisko
Telefon
E-mail
Treść zapytania

Wyrażam zgodę na przetwarzanie moich danych osobowych przez firmę Dorota Poniecka Nieruchomości dla celów związanych z działalnością pośrednictwa w obrocie nieruchomościami, jednocześnie potwierdzam, iż zostałem poinformowany o tym, iż będę posiadać dostęp do treści swoich danych do ich edycji lub usunięcia.

Wyślij ofertę

E-mail
© 2026 Dorota Poniecka Nieruchomości. Wszystkie prawa zastrzeżone.