Kursy walut NBP: USD 3,98 | EUR 4,32 | CHF 4,53 |

Wyszukiwarka
Notes
Zgłoś ofertę
Kalkulator
O nas
Kontakt

Mieszkania
Domy
Działki
Lokale
Obiekty
Szczegóły oferty
Rodzaj oferty
dom wolnostojacy ( sprzedaż )
Numer oferty
12325928
Miejscowość
ŻURAWICA
Cena
1 150 000 PLN kalkulator
Cena za mkw
6 388,89 PLN mkw
Powierzchnia
180.00 m2
Pow. działki
14000.00 m2
Liczba pokoi
6
Liczba pięter
1
Stan domu
bardzo dobry
Rok budowy
1985
Droga dojazdowa
asfaltowa
Opis
NA SPRZEDAŻ - DOM Z SADEM I ZABUDOWĄ GOSPODARCZĄ | ŻURAWICA k. SANDOMIERZA | 1,40 ha Z przyjemnością przedstawiam Państwu wyjątkową nieruchomość - przestronny, zadbany dom z sadem owocowym i budynkiem gospodarczo-magazynowym, położony w malowniczej miejscowości Żurawica, gm. Obrazów - zaledwie kilka minut od Sandomierza.
Powierzchnia użytkowa domu 180 m2
Działki nr 122 i 126/1 o łącznej powierzchni 1,40 ha
Budynek gospodarczy 181 m2 z przechowalnią na owoce
Sad owocowy ok. 1 ha - jabłonie, czereśnie, śliwy
DOM - SZCZEGÓŁY Budynek trzykondygnacyjny, wybudowany w 1985 r. z solidnej cegły typu "hadykówka", pokryty blachodachówką. Budynek w bardzo dobrej kondycji technicznej, gotowy do zamieszkania.

Ogrzewanie
piec gazowy
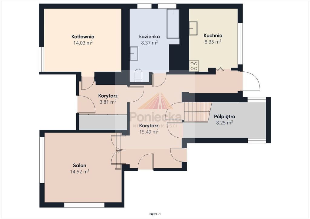
piec na paliwo stałe (węgiel) Przyziemie
pokój - 9,78 m2
salon - 14,52 m2
kuchnia - 8,35 m2
łazienka z pralnią - 8,37 m2
przedpokój - 19,30 m2
kotłownia - 14,03 m2 Parter
sypialnia - 15,86 m2
pokój - 10,19 m2
salon - 25,54 m2
kuchnia - 13,11 m2
łazienka - 5,42 m2
toaleta - 1,13 m2
przedpokój - 19,80 m2
ganek - 2,00 m2 Poddasze
sypialnia - 11,06 m2
garderoba - 10,39 m2
pomieszczenie gospodarcze - 10,85 m2
przedpokój - 10,47 m2
toaleta - 1,54 m2
strych - 13,84 m2 DZIAŁKA I ZABUDOWANIA Powierzchnia łączna 1,40 ha
Sad owocowy zadbany, produkcyjny sad z jabłoniami, czereśniami i śliwami (ok. 1 ha)
Budynek magazynowo- garażowy 181 m2, z podziemną przechowalnią owoców
Teren ogrodzony, podwórko utwardzone, z monitoringiem i starannie utrzymaną zielenią ATRAKCJE TURYSTYCZNE W OKOLICY
Nieruchomość znajduje się w sąsiedztwie pięknego i historycznego Sandomierza, który oferuje liczne atrakcje turystyczne i kulturalne. W niedalekiej odległości znajdziesz m.in.
Zamek Królewski w Sandomierzu
Podziemną Trasę Turystyczną
Wąwóz Królowej Jadwigi
Rynek z Ratuszem i Bramą Opatowską
Bulwary nad Wisłą
liczne winnice i trasy rowerowe
wydarzenia kulturalne, jarmarki, festyny i koncerty sezonowe
Lokalizacja łączy w sobie komfort życia na łonie natury z szybkim dostępem do zabytkowego miasta i jego zaplecza gastronomiczno-rozrywkowego.

LOKALIZACJA
Żurawica - spokojna, malownicza miejscowość w gminie Obrazów, powiat sandomierski.
Bardzo dobry dojazd do Sandomierza - idealne połączenie funkcji mieszkalnej z działalnością gospodarczą (np. sadowniczą, magazynową, usługową).

WSPÓŁPRACA Z AGENTAMI
Zapraszamy do współpracy agentów innych biur nieruchomości.

Potrzebujesz kredytu na realizację marzeń? Zapytaj agenta - pomożemy w uzyskaniu finansowania!

Nota prawna
Informacje dotyczące opisu nieruchomości podane są przez właściciela, mają charakter wyłącznie informacyjny i mogą podlegać aktualizacji. Oferta dotycząca nieruchomości stanowi zaproszenie do rokowań zgodnie z art. 71 Kodeksu Cywilnego i nie stanowi oferty określonej w art. 66 i następnych KC. Informacja przekazana przez agenta / właściciela biura uważana jest za dokładną i rzetelną, ale nie jest gwarantowana i powinna być niezależnie zweryfikowana.


Dodatkowe informacje: umeblowane, garaż

Kontakt do agenta

Dorota Poniecka Nieruchomości
Sarmacka 12 E lok.12
02-972 Warszawa
tel.: 505 059 024 lub 516 156 467
email: dorota@nieruchomoscidp.pl

Wyślij zapytanie

Imię i Nazwisko
Telefon
E-mail
Treść zapytania

Wyrażam zgodę na przetwarzanie moich danych osobowych przez firmę Dorota Poniecka Nieruchomości dla celów związanych z działalnością pośrednictwa w obrocie nieruchomościami, jednocześnie potwierdzam, iż zostałem poinformowany o tym, iż będę posiadać dostęp do treści swoich danych do ich edycji lub usunięcia.

Wyślij ofertę

E-mail
© 2026 Dorota Poniecka Nieruchomości. Wszystkie prawa zastrzeżone.